No title
 

www.greinert-dud.de

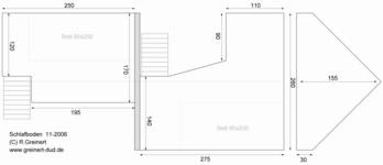
Schlaf-Boden
HOMEüber michProjekteRasen-RoboterUSB-IsolatorIO-WarriorLED-MatrixPAL-TestbildWII IR CAMDCF Haupt UHRR8C-MicrocontrollerZ80-ComputerLogic-AnalyserHOME_SERVERHomecontrolRapidQTypo3Case moddingCNC-FräseALU-CNC-FräseDRILL/MILL UmbauKompressorNMRA-DCC_BoosterTriebwagenCNC-DriveriCordWerkzeugwagenVerschiedenesR100RScenic-MotorHyundai-I10WohnmobilWasserstand messenPOOLSchlaf-BodenKontaktGästebuchLinksLOGIN     










Ein Teil des Dachboden vor dem Umbau.

 

Für den Umbau wird eine hälfte der Dachboden verwendet.

 

Zuerst habe ich die Spanten Zwischenräume mit 200 mm Mineralwolle gedämmt.

Für die Dampfsperre verwende ich eine Spezialfolie.

 

Nach dem dämmen und anbringen der Gipsplatten, habe ich mit dem Rückbau des

vorhandenen Zwischenbodens und der alten Dämmung begonnen.

 

Einziehen einer Zwischenwand um die beiden Schlafböden zu trennen.

 

Es soll je ein Bereich für meine beiben Kinder entstehen.









Das Zimmer von meinem Sohn vor und nach dem Durchbruch der Decke.

 

Das Geländer habe ich aus Rundstäben und Vierkanthölzern angefertigt,

wobei die 20 mm dicken Rundhölzer eingefrässt und geleimt wurden.

 

Die Leiter habe ich aus Viekanthölzer und Leimholzbrettern gefertigt.

Die Leiter ist über eine Mechanik geführt und kann bei Bedarf an die Wand geschoben werden, durch diese Mechanik wird die Leiter immer richtig positioniert.

 

 
















Das Zimmer meiner Tochter vor und nach dem Durchbruch.

 

 

Bei meiner Tochter ist die Öffnung zum Boden über die gesamte länge des Zimmers,

im Gegensatz zum Durchbruch der bei dem Zimmer von meinem Sohn vorgenommen wurde.

Dort wurde nur der vordere Teil der Decke geöffnet, der andere hintere Teil musste bleiben, da dort sich der Schlafboden meiner Tochter befindet.

 

Bei meiner Tochter bekommt die Leiter einen festen Platz an der Aussenwand, damit die Leiter nicht so wuchtig wird, habe ich diese mit einer Drehung versehen.

 

Da unter dem Fenster sich ein Heizkörper befindet und die Treppe im unterem Bereich an diesem vorbei muss, ist in der Treppe dort eine Einbuchtung.